La Divisa 900San Bernardo, RM
(+562) 2495 1100 - (+569) 9344 7635
(+569) 7634 1999
ventas@tinyspace.cl
La Divisa 900San Bernardo, RM
(+562) 2495 1100 - (+569) 9344 7635
(+569) 7634 1999
ventas@tinyspace.cl
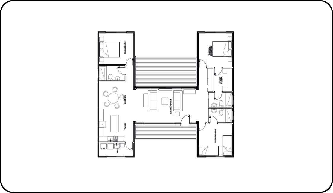
3 Dormitorio / 3 Baño / Sup. Total: 132,00 m2









• Estructura: Base a perfiles de acero de distintas dimensiones.
• Tamaño Casa: 3 Estructuras 6 x 3,5 m superficie total 63 m2
• Terminación Ventanas: Ventanas termopanel de distintas medidas
• Terminación Piso: Piso vinílico flotante.
• Terminación Interior de Muros: Plancha de PVC de 8 mm.
• Terminación Exterior de Muros: Plancha de Siding Metálico Prepintado en formato de 16 x 380 x 3800 mm
• Aislación muros: fisiterm 50 mm de espesor.
• Terminación Cielo: Plancha de PVC blanco de 7,5 mm
• Iluminación: Iluminación LED Embutido e Interruptore Smart mediante wifi.
• Equipamiento Baños: Vanitorio, Showerdoor, inodoro one pice, y grifería en todos los baños.
• Equipamiento Cocina: Encimera Eléctrica de 4 platos, Horno eléctrico, Campana, Muebles de Cocina, Lavaplatos y Grifería
• Calefacción de agua: Mediante termo eléctrico 120 lts
• Estructura: Base a perfiles de acero de distintas dimensiones.
• Tamaño Casa: 3 Estructuras 6 x 3,5 m superficie total 63 m2
• Terminación Ventanas: Ventanas termopanel de distintas medidas
• Terminación Piso: Piso vinílico flotante.
• Terminación Interior de Muros: Plancha de PVC de 8 mm.
• Terminación Exterior de Muros: Plancha de Siding Metálico Prepintado en formato de 16 x 380 x 3800 mm
• Aislación muros: fisiterm 50 mm de espesor.
• Terminación Cielo: Plancha de PVC blanco de 7,5 mm
• Iluminación: Iluminación LED Embutido e Interruptore Smart mediante wifi.
• Equipamiento Baños: Vanitorio, Showerdoor, inodoro one pice, y grifería en todos los baños.
• Equipamiento Cocina: Encimera Eléctrica de 4 platos, Horno eléctrico, Campana, Muebles de Cocina, Lavaplatos y Grifería
• Calefacción de agua: Mediante termo eléctrico 120 lts
En Tiny Space, nos especializamos en diseñar y vender tiny houses que combinan simplicidad, sostenibilidad y comodidad.
2024 © Diseño y desarrollo por m2c.cl para “Tiny Space”
Escríbenos y te contestaremos a la brevedad.